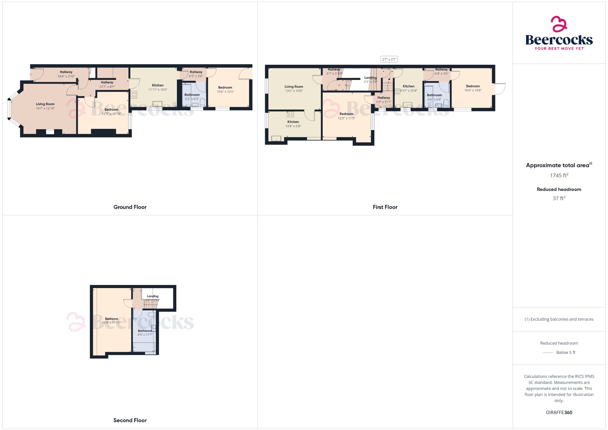
Louis Street, Hull,HU3 1LZ INVITING OFFERS BETWEEN £170,000 - £175,000
Louis Street, Hull,HU3 1LZ
Guide Price
£170,000
This is a pre-market property. You need to create an account and register to our property alerts in order to view it.
If you think you are already registered and can't see this property enter your email address here and we will send you a magic link:
Your Email*















