GUIDE PRICE £125,000
Plot Of Land 8 Endyke Lane
FANTASTIC OPPORTUNITY TO BUILD YOUR OWN DETACHED HOME ON A PROMINENT PLOT
Set within a DESIRABLE LOCATION with a WIDE ROAD FRONTAGE, this PLOT offers a unique chance to create an INDIVIDUAL DETACHED PROPERTY designed to your own taste and specification. With the PRE-APPLICATION PLANNING ENQUIRY already submitted, it’s an exciting opportunity for those looking to bring their dream home to life.
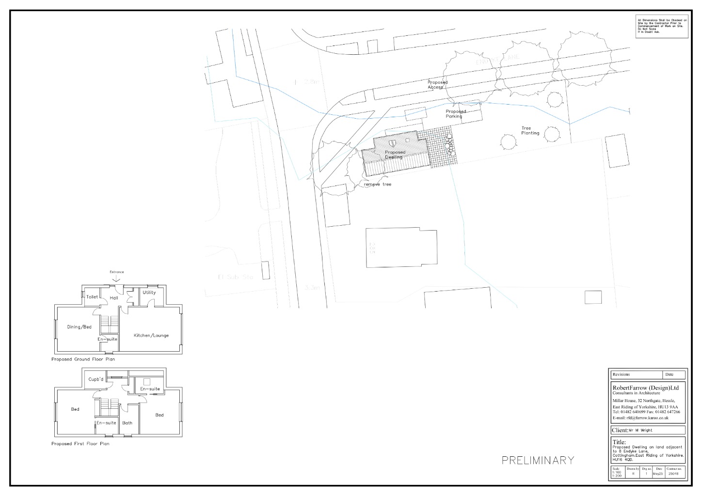
Estimated Measurements of Land:
Line A - Total length of the land this is approx 65m
Line B - length before it changes angle - approx 45m
Line C - The change of angle is approx 25m
Line D - Is the width of the land which is approx 15m
Line E - is the distance from the garage to the proposed border which is approx 3.6m
Please see estimated measurements diagram in picture 3.
Please Note: All measurements are a rough estimate. We have simply measured the perimeter of the land using a document an architect created that is to scale.
Tenure
The land is freehold.
Council Tax
Council Tax will be payable to the East Riding of Yorkshire Council once a dwelling is constructed and banded accordingly. Buyers are advised to make their own enquiries with the local authority regarding future banding and charges.
Fixtures & Fittings
Any items or materials remaining on site may be available by separate negotiation.
Disclaimer
The agent has not had sight of confirmation documents and therefore the buyer is advised to obtain verification from their solicitor or surveyor.
Viewings
Strictly by appointment with the sole agents.
Mortgages
We will be pleased to offer expert advice regarding finance for this purchase, details of which are available from our Cottingham office. Your property or land may be at risk if you do not keep up with repayments on a mortgage or other loan secured against it.
Valuation/Market Appraisal
Thinking of selling your land or development opportunity? More people choose Beercocks in this region than any other agent. Book your free valuation now!